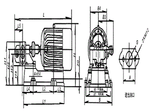
渣油泵安装尺寸

泰邦油泵
首页 | 收藏 | 地图 | 
全国客服电话:13645310591

通知公告2015年5月1日针对近期出现违法行为人利用网络媒体假冒我公司名义发布产品广告等信息构成侵权之事,本公司作如下郑重法律声明:本公司是按法律规定依法成立,我是一家从事渣油泵专业制造企业,本企业对其经工商行政部门审核注册登记的名称享有合法使用权并受法律保护,提供优质的产品和服务。免费为用户提供培训、指导安装和维修.

渣油泵安装尺寸-重油煤焦油泵安装尺寸-高压齿轮泵安装尺寸

渣油泵安装尺寸

渣油泵安装尺寸,重油煤焦油泵安装尺寸,高压齿轮泵安装尺寸渣油泵安装尺寸根据价质的特性在结构主要零部件材质以及轴端密封等方面均做了相应的改进,使得本泵更适应特定的介质,使用寿命是同种一般齿轮泵的5倍以上.
产地:中国>河北>沧州
供应商:泊头市特种油泵阀制造有限公司
电话:0317-8198985 0317-8198975
手机:15231785663
传真:0317-8198975

渣油泵安装尺寸详细介绍

标签:渣油泵安装尺寸|重油煤焦油泵安装尺寸|高压齿轮泵安装尺寸
ZYB-18.3~ZYB-83.3外型、安装尺寸及重量

型号
L
L1
L2
L3
L4
L5
H
H1
H2
H3
H4
B
B1
B2
B3
B4
A
G
重量
Weight(kg)
ZYB-18.3
566
391
239
86
75
86
230
176
130
109
40
259
225
190
155
192
52
G3/4"
62.15
ZYB-33.3
618
416
256
86
82
93
285
186
140
119
50
279
245
190
180
192
52
G3/4"
66.8
ZYB-55
595
391
239
86
89.5
100.5
230
176
130
109
40
259
225
190
155
192
70
G1"
64.15
ZYB-83.3
652
416
256
94
102
113
285
186
140
119
50
279
245
190
180
192
78
G11/2"
70.15
ZYB-200~ZYB-960外型、安装尺寸及重量

 


型号
L
L1
L2
L3
L4
n×φ
H
H1
H2
H3
H4
B
B1
B2
B3
B4
D
D1
D2
n×d
重量
Weight(kg)
ZYB-200
709
577
419
58
90
4×φ16
355
314
168
202
50
326
290
240
190
214
φ50
φ110
φ140
4×M12
135
ZYB-300
883
715
502
80
124
4×φ22
423
378
198
240
70
390
340
280
210
228
φ70
φ123
φ155
6×M14
173
ZYB-483.3
972
795
565
890
124
4×φ22
465
378
198
240
70
450
400
290
255
228
φ70
φ123
φ155
6×M14
213
ZYB-633
1074
901
629
100
145
4×φ22
500
455
258
275
70
450
400
285
255
280
φ100
φ158
φ190
8×M14
274.5
ZYB-960
1099
900
635
100
145
4×φ22
525
455
283
275
70
470
420
285
285
280
φ100
φ158
φ190
8×M14
304.5
ZYB1.5/2.0-7.5/2.0型泵外型、安装尺寸

型号

L
L1
L2
L3B1B2B3H
H1
H2
GφD4-φd
ZYB-1.5/2.0193.54575138.51141389513267.587G3/4"1810
ZYB-2.1/2.0198.54878142.5124154110164.586112G1"1810
ZYB-3/2.0198.54878142.5124154110164.586112G1"1810
ZYB-4.2/2.02205888155160190140205107.5140G11/4"2812
ZYB-7.5/2.02396598164.5160190140205107.5140G11/2"2812
ZYB-12/2.0360106136257190220210256136178G2"3214

 ZYB-1.5/2.0~ZYB-12/3.5外型、安装尺寸重量

 

型号
L
L1
L2
L3
L4
H
H1
H2
H3
H4
B
B1B2B3B4
G
D
n×φ

重量
Weight(kg)

ZYB-1.5/2.0
582
486
339
47.5
55
290
190
145
125.5
58
293
257
190
180
95
G3/4"
φ36
4×φ18
56
ZYB-2.1/2.0
586
493
344
49
56
302
210
157
131
45
293
257
206
180
110
G1"
φ50
4×φ18
63.5
ZYB-3/2.0
605
499
349
49
56
310
210
157
131
45
333
297
206
190
110
G1"
φ50
4×φ18
77.5
ZYB-4.2/2.0
720
585
420
54
65
373
255
190
157.5
50
368
332
242
210
140
G11/4"
φ70
4×φ18
121
ZYB-7.5/2.0
780
637
448
60
75
378
260
195
162.5
55
368
332
242
210
140
G11/2"
φ70
4×φ18
136
ZYB-12/2.0
1020
862
616
78
103
468
321
243
201
65
416
380
272
255
210
G2"
φ95
4×φ18
173
上一页:ZYB渣油泵型下一页:ZYB-7.5/3.5B

与渣油泵安装尺寸 相关产品

高压渣油泵,渣油泵-重油泵,煤焦油泵-重油煤焦油泵
ZYB重油煤焦油泵,ZYB渣油泵,重油泵生产早,生产基地,煤焦油泵为机械密封,寿命是普通齿轮泵10倍以上的寿命,ZYB重油泵配套300家企业,并可根据用户不同的需要为你专门设计
重油煤焦油专用泵-重油泵,煤焦油泵-煤焦油泵
ZYB重油煤焦油泵,重油泵生产较早,重油煤焦油泵生产基地,煤焦油泵为机械密封,寿命是普通齿轮泵10倍以上的寿命,ZYB重油泵配套300家企业,并可根据用户不同的需要为你专门设计
GZYB高压齿轮泵-高压渣油泵-ZYB渣油泵
GZYB型高精度齿轮泵是我公司新研发的渣油泵新产品,与普通燃油泵不同的是,它突破了传统齿轮泵设计的理念,应用了我公司自主研发的液压平衡、减震、降噪、抗回转件拉毛胶合、抗杂质、耐腐蚀等新技术。
ZYB渣油泵-渣油泵-可调压渣油泵
渣油泵—是在原KCB型齿轮泵基础改进而成的,ZYB渣油泵主要零部件材质选用更加耐磨材料,经热处理具有很高的强度和硬度。在结构上采用多项液力平衡技术,使泵在高压工作时效率高、噪音小、运转平稳定,保压时间长等性能。
友情链接:
公司地址:泊头工业区1号  电话:0317-8198985 0317-8198975 
邮编:250100 传真:0317-8198975 邮箱:88676220@163.com  点击这里给我发消息121351442
冀ICP备12008308号-7